Retour liste

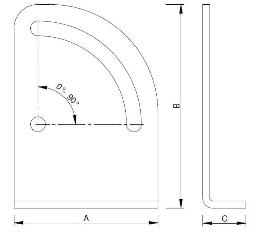
Support de montage pivotant pour cisailles pneumatiques – Partie B

Matière : Acier plaqué Zinc